Projekt Trokut
Trokut je novozagrebačko naselje smješteno između naselja Trnsko (istok), Savski gaj (zapad) i Sveta Klara (jug). Naziv je dobio po svom jedinstvenom položaju – smješten je između tri željezničke pruge koje, pogledom iz zraka, tvore izgled trokuta.
Trokut je vrlo miran kvart, bez buke i gradske vreve. Kao takav, idealan je za mlade obitelji s djecom, ali i za poslovne ljude zbog pristupačnog izlaza iz grada, te za studente zbog svoje odlične prometne povezanosti i blizine najvećeg studentskog doma te sadržaja koje on pruža.
Kvart karakteriziraju obiteljske kuće, te manje urbane vile, a projektom Trokut – urbana oaza razvijamo kvart u smjeru kvalitetnog života u dodiru s prirodom.
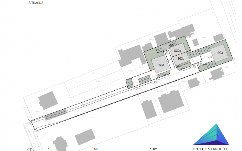
Naša četiri objekta smještena su u sjevernom dijelu kvarta, bliže Aveniji Dubrovnik, ali dovoljno odmaknuti da su u potpunosti zaštićeni od buke te novozagrebačke prometne žile kucavice. Sama lokacija pruža svojim budućim stanarima ono najbolje što Trokut može dati.
Naš tim arhitekata ispunio je sve zahtjevne zadatke koje smo stavili pred njih, želeći našim kupcima omogućiti visoku kvalitetu života. Već unutar 33 m² uspjeli smo realizirati dnevni boravak, odvojenu kuhinju s blagovaonom i kupaonu te spavaću sobu, ali kroz našu otvorenu komunikaciju s kupcima spremni smo svaki tlocrt prilagoditi različitim potrebama i željama.
Ovim i našim budućim projektima Trokut oblikujemo u urbanu oazu, gdje će svaki stanar uživati punim plućima.
Mikro lokacija za razvoj ovog projekta pomno je odabrana i odlikuju je mnoge prednosti. Zbog same prostranosti parcele bili smo u mogućnosti odmaknuti zgrade, tako da svaka ima dovoljno prostora i neometanu privatnost.
Udaljenost od osnovne škole svega je 150 m zračne linije, a od dječjeg vrtića i doma zdravlja, te ljekarne svega 300 m.
Do tržnice Trnsko i DM-a dijeli Vas 10 minuta šetnje.
Tramvajska i autobusna stanica nalaze se 650 metara od objekata, što je 8 minuta lagane šetnje kroz ovaj mirni kvart. Trokut je izvrsno povezan tramvajskim linijama 7, 14 i 31, te autobusnim 109, 222, 234, 607.
U neposrednoj blizini našeg projekta nalaze se neophodni sadržaji za kvalitetan život poput trgovine, pekarnice, dječjeg igrališta te frizerskih salona.
Sam projekt sastoji se od ukupno 22 stana raspoređena u četiri zgrade.
Prva zgrada (SG1) smjestila se na parcelu veličine 593,82 m², a u njoj se nalazi 8 stanova s osiguranim vanjskim parkirnim mjestima. Sami stanovi projektirani su u skladu s modernim životnim trendovima, a veličine su 33,09 m² do 53,35 m², te su jednosobni, dvosobni i trosobni, uz mogućnost prilagodbe sobnosti u ranoj fazi gradnje prema željama kupaca. Svakom stanu pripada i spremište u susjednom objektu 2a.
Druga zgrada (SG2a) nalazi se na parceli veličine 289,1 m², a u njoj su projektom zamišljena 3 prostrana stana od 60,05 m², 73,3 m² i 79,25 m². Svaki stan ima lođu ili prostranu terasu, te spremište u podrumu objekta i osigurano vanjsko parkirno mjesto.
Treća zgrada (SG2b) projektirana je na parceli površine 282,67 m², a u njoj su se smjestila 4 stana, idealnog rasporeda – jednosoban (40,35 m²), dvosoban (36,65 m²), trosoban penthouse (60,35 m²) i četverosoban (79,55 m²). Svakom stanu pripada vanjsko parkirno mjesto, te spremište u podrumu objekta.
Četvrta zgrada (SG3) je na parceli od 510,87 m² i smješta 7 stanova. Svakom stanu pripada parkirno mjesto, a u obližnjoj zgradi 2b nalaze se i pripadajuća spremišta. Zgrada je kvalitetno projektirana, pa će i najzahtjevniji kupci pronaći stan odgovarajuće veličine od 33,09 m² do 63,7 m².
Do objekata vodi novoizgrađena pristupna cesta koja se priključuje na Hermanovu ulicu.
Kvalitetom izgradnje, uređenjem i odabirom vrhunskih projektanata i materijala kupcima smo osigurali funkcionalna, kvalitetna i estetski privlačna rješenja, a sve u skladu s našom niti vodiljom – trajno zadovoljan kupac je sretan kupac.
Nadamo se da ćemo u budućnosti, u suradnji sa susjedima na parceli uz projekt Trokut – urbana oaza uspjeti realizirati i jedan park za stanare s roštiljem i sadržajima za djecu.
Do tada, dobrodošli u mirni otok usred ‘urbane džungle’ Novog Zagreba. Dobrodošli u vaš novi dom.
Tehnički opis
Građevine su jednostavne AB konstrukcije manjeg i srednjeg raspona. Svi nosivi zidovi su od AB debljine 18 cm, te strope ploče 20 cm.
Građevina je temeljena na AB temeljima, trakama sa betonskim nadtemeljnim zidovima. Svi pregradni zidovi unutar stana su od gips-kartonskih ploča u sustavu montažne gradnje.
Pročelje građevine je u sustavu “etics” EPS izolacije s dekorativnom žbukom sitnijeg granulata. Krov je ravni s potrebnim slojevima izolacije i oblutkom kao završnim slojem. Sva vanjska stolarija je PVC renomiranog proizvođača.
Grijanje je etažno plinsko – kombi bojler i potrošna topla voda.
Predviđena je priprema za klima uređaje.
Energetski razred – Specifična godišnja primarna energija A+
Karakteristike naših stanova
Prometna povezanost
Lakoća pristupa javnim prijevozom do svih gradskih sadržaja.
Kvalitetno opremljeni stanovi
Vrhunski materijali, hrastov parket, te kvalitetna keramika i sanitarije.
Urbana oaza
Potražite predah od gradske vreve u Vašem komadiću raja.
Detaljnije o stanovima
odaberite zgradu klikom na sliku
odaberite kat klikom na sliku
odaberite željeni stan na tlocrtu
Info
- dvosoban stan
- 33,09 m² orijentacije na sjever i istok
- visoko prizemlje
- degažman, kupaonica, kuhinja s blagovaonicom, dnevni boravak, spavaća soba i lođa
- vanjsko parkirno mjesto i spremište
- dvosoban stan
- 42,35 m² orijentacije na sjever i zapad
- visoko prizemlje
- dnevni boravak, hodnik, kupaonica, kuhinja s blagovaonom i spavaća soba
- vanjsko parkirno mjesto i spremište
- trosoban stan
- 53,35 m² stan trostrane orijentacije na jug, istok i zapad
- visoko prizemlje
- dnevni boravak, dva degažmana, kupaonica, kuhinja s blagovaonom, lođa i dvije spavaće sobe
- vanjsko parkirno mjesto i spremište
- dvosoban stan
- 33,09 m² orijentacije na sjever i istok
- prvi kat
- degažman, kupaonica, kuhinja s blagovaonicom, dnevni boravak, spavaća soba i lođa
- vanjsko parkirno mjesto i spremište
- dvosoban stan
- 42,25 m² orijentacije na sjever i zapad
- prvi kat
- dnevni boravak, hodnik, kupaonica, kuhinja s blagovaonom i spavaća soba
- vanjsko parkirno mjesto i spremište
- trosoban stan
- 53,35 m² trostrane orijentacije na jug, istok i zapad
- prvi kat
- dnevni boravak, dva degažmana, kupaonica, kuhinja s blagovaonom, lođa i dvije spavaće sobe
- vanjsko parkirno mjesto i spremište
- dvosobni penthouse
- 46,12 m² trostrane orijentacije na sjever, istok i zapad
- drugi/uvučeni kat
- dnevni boravak, ulazni prostor, kupaonica, kuhinja s blagovaonom, spavaća soba i velika terasa (22,7 m²)
- vanjsko parkirno mjesto i spremište
- dvosobni penthouse
- 46,42 m² trostrane orijentacije na jug, istok i zapad
- drugi/uvučeni kat
- dnevni boravak, ulazni prostor, kupaonica, kuhinja s blagovaonom, spavaća soba i velika terasa (22,7 m²)
- vanjsko parkirno mjesto i spremište
- trosoban stan
- 73,3 m² dvostrane orijentacije na sjever i istok
- visoko prizemlje
- dvije spavaće sobe, kuhinja, dnevni boravak i blagovaona, te dva degažmana, lođa, kupaonica i wc
- vanjsko parkirno mjesto i spremište
- četverosoban stan
- 79,25 m² trostrane orijentacije na sjever, istok i zapad
- prvi kat
- tri spavaće sobe, kuhinja, dnevni boravak i blagovaona, te dva degažmana, lođa, kupaonica i wc
- vanjsko parkirno mjesto i spremište
- trosoban penthouse
- 60,05 m² trostrane orijentacije na sjever, istok i zapad
- drugi/uvučeni kat
- dvije spavaće sobe, kuhinja, dnevni boravak i blagovaona, te degažman, kupaonica i velika terasa (18,1 m²)
- vanjsko parkirno mjesto i spremište
- jednosoban stan
- 40,35 m² istočne orijentacije
- visoko prizemlje
- dnevni boravak, dio za blagovanje, degažman, kuhinja i kupaonica
- vanjsko parkirno mjesto i spremište
- dvosoban stan
- 36,65 m² jugoistočne orijentacije
- visoko prizemlje
- dnevni boravak, spavaća soba, kuhinja s blagovaonom, kupaona i hodnik
- vanjsko parkirno mjesto i spremište
- četverosoban stan
- 79,55 m² trostrane orijentacije na jug, istok i zapad
- prvi kat
- dnevni boravak, tri spavaće sobe, kuhinja, blagovaona, dvije kupaone, dva degažmana i lođa
- vanjsko parkirno mjesto i spremište
- trosoban stan
- 60,35 m² trostrane orijentacije na jug, istok i zapad
- drugi/uvučeni kat
- dnevni boravak, dvije spavaće sobe, kuhinja s blagovaonom, kupaonica, degažman i velika terasa (18,1 m²)
- vanjsko parkirno mjesto i spremište
- dvosoban stan
- 33,09 m² orijentacije na zapad i jug
- visoko prizemlje
- degažman, kupaonica, kuhinja s blagovaonicom, dnevni boravak, spavaća soba i lođa
- vanjsko parkirno mjesto i spremište
- dvosoban stan
- 42,35 m² orijentacije na istok i jug
- visoko prizemlje
- dnevni boravak, hodnik, kupaonica, kuhinja s blagovaonom i spavaća soba
- vanjsko parkirno mjesto i spremište
- trosoban stan
- 53,65 m² trostrane orijentacije na sjever, istok i zapad
- visoko prizemlje
- dnevni boravak, dva degažmana, kupaonica, kuhinja s blagovaonom, lođa i dvije spavaće sobe
- vanjsko parkirno mjesto i spremište
- četverosoban stan
- 63,10 m² trostrane orijentacije na jug, istok i zapad
- prvi kat
- dnevni boravak, degažman, kupaonica, kuhinja s blagovaonom, tri spavaće sobe i lođa
- vanjsko parkirno mjesto i spremište
- četverosoban stan
- 63,20 m² trostrane orijentacije na sjever, istok i zapad
- prvi kat
- dnevni boravak, degažman, kupaonica, kuhinja s blagovaonom, tri spavaće sobe i lođa
- vanjsko parkirno mjesto i spremište
- dvosoban penthouse
- 46,12 m² trostrane orijentacije na jug, istok i zapad
- drugi/uvučeni kat
- dnevni boravak, ulazni prostor, kupaonica, kuhinja s blagovaonom, spavaća soba i velika terasa (22,7 m²)
- vanjsko parkirno mjesto i spremište









